第一火災千里中央ビル 1階店舗・事務所
-NEW-【千里中央】1階 店舗・事務所向け物件
豊中市新千里西町一丁目1-8
【飲食不可】
北大阪急行電鉄「千里中央」駅 徒歩6分
大阪モノレール線「千里中央」駅 徒歩6分
2路線利用が可能な第一火災千里中央ビル 1階、
事務所のほか、来店型店舗にもおすすめの物件です。
正面入口は土日祝CLOSEですが、
B工事にて出入口設置可能ですので、ご相談ください。
同ビル9階にはテナント様用の貸会議室・リフレッシュルームが備えられています。
業種等のご相談も承っておりますので、お気軽にお問い合わせください。
| 賃料 |
1,325,940円(税込) |
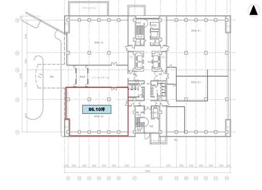
専有面積 | 284.64㎡(86.1坪) |
|---|---|---|---|
| 敷金 | 12ケ月分 | 礼金 | なし |
| 償却 | なし | 管理費 | 共益費:なし |
| 物件種別 | 貸店舗・事務所(一部) | 駐車場 | あり |
| 所在地 | 豊中市新千里西町一丁目1-8 | ||
| 交通 |
北大阪急行電鉄「千里中央」駅 徒歩6分 大阪モノレール線「千里中央」駅 徒歩6分 |
||
| 建物構造 | SRC造地下2階付地上10階建 | 所在階 | 1階 |
| 築年数 | 1991年9月 | 取引態様 | 媒介 |
| 設備 | 9階貸会議室・リフレッシュルーム | ||
| 備考 | 普通借家(2年) / 指定の保証会社及び家財保険加入必須 |
物件一覧
-
【北新地本通り】1階貸店舗
バー・ラウンジ向け物件
-
住所
大阪市北区曽根崎新地1丁目7-3
-
物件種類
貸店舗(一部)
-
賃料
ご相談
-
面積
19.84㎡(6.00坪)
-
階数
1F-D
この物件はご成約となりました
-
-
【なんば駅】13番出口徒歩1分 ビルイン...
ネイル・エステ・まつげサロン向け
ピラティス・ヨガスタジオ向け物件
撮影スタジオ向け物件
スクール向け物件
医療・福祉・スポーツ向け物件
-
住所
大阪市中央区難波4丁目2-3
-
物件種類
貸店舗(一部)
-
賃料
770,000円(税込)
-
面積
112.20㎡(33.94坪)
-
階数
7F
この物件はご成約となりました
-
-
【本町駅】1階路面店舗
飲食店向け物件
医療・福祉・スポーツ向け物件
脱毛サロン・美容系・クリニック向け物件
カフェ・バー向け物件
-
住所
大阪市西区立売堀1丁目2-23
-
物件種類
貸店舗(一部)
-
賃料
1,490,940円(税込)
-
面積
165.95㎡(50.20坪)
-
階数
1F
この物件はご成約となりました
-
-
【北新地本通り】1階路面店舗
バー・ラウンジ向け物件
-
住所
大阪市北区曽根崎新地1丁目7-3
-
物件種類
貸店舗(一部)
-
賃料
418,000円(税込)
-
面積
19.85㎡(6.00坪)
-
階数
1F-A
この物件はご成約となりました
-
-
【北新地本通り】貸店舗
バー・ラウンジ向け物件
-
住所
大阪市北区曽根崎新地1丁目7-3
-
物件種類
貸店舗(一部)
-
賃料
418,000円(税込)
-
面積
76.03㎡(23.00坪)
-
階数
6F
この物件はご成約となりました
-
-
-NEW-【京橋】駅から徒歩5分の1階路...
飲食店向け物件
医療・福祉・スポーツ向け物件
脱毛サロン・美容系・クリニック向け物件
-
住所
大阪市都島区東野田町3丁目13-24
-
物件種類
貸店舗(一部)
-
賃料
346,500円(税込)
-
面積
57.62㎡(17.43坪)
-
階数
1階
この物件はご成約となりました
-
店舗、家づくりの無料見積り・ご相談は アクトデザイン建築工房
TEL 06-6147-9655 06-6147-9655
受付時間:9:00~18:00(平日のみ)
不動産仲介についてのご相談は アクト不動産
TEL 06-6147-7878 06-6147-7878
受付時間:9:00~18:00(平日のみ)